Portfolio
CV
Contact
Portfolio
CV
Contact
Marlow Parker
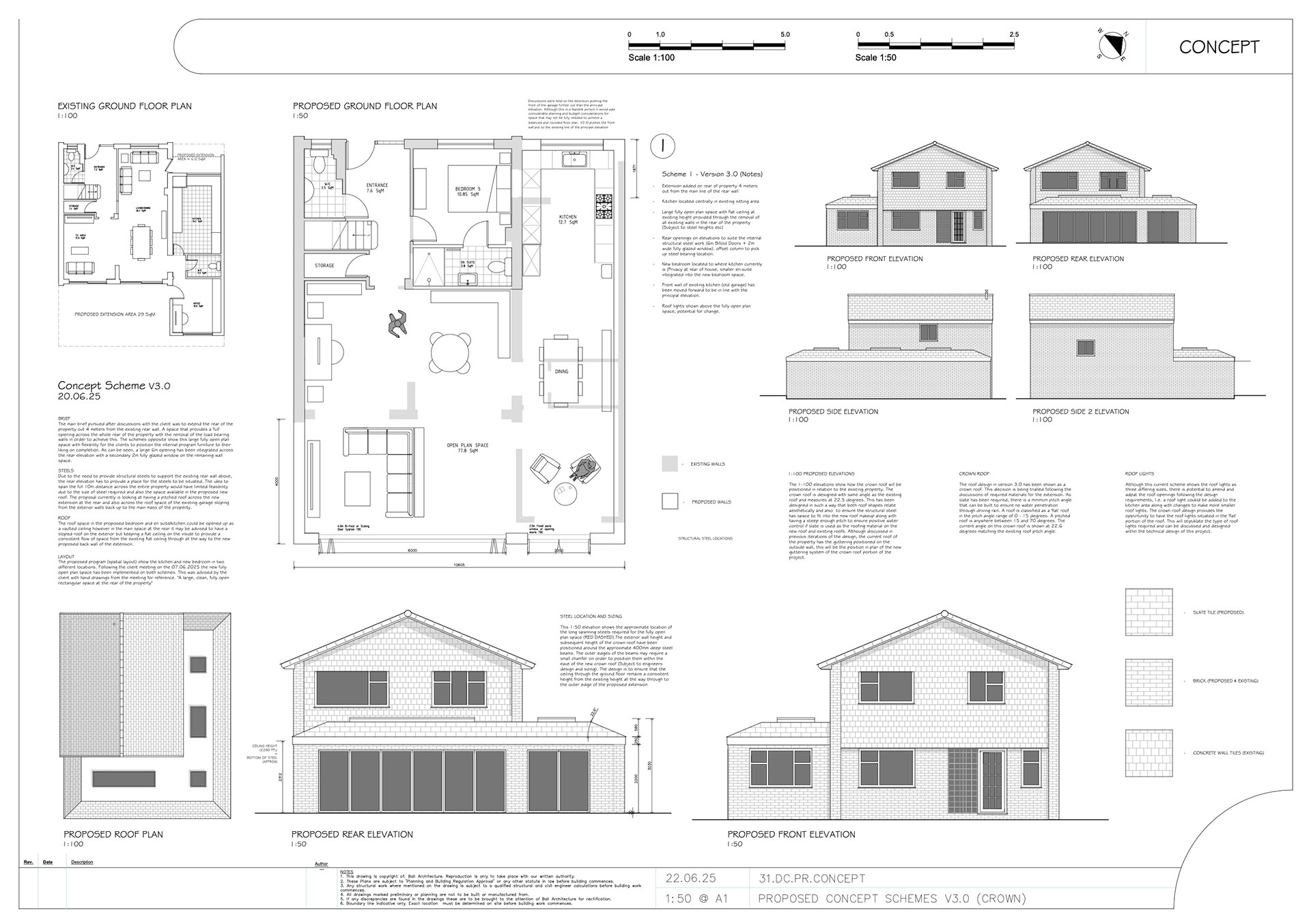
Durlston Crescent
Residential Extension (CROWN ROOF)
PROPOSED FLOOR PLANS
PROPOSED ELEVATIONS
PROPOSED BLOCK PLAN
CONCEPT DEVELOPMENT A1
↑
Back to Top