Portfolio
CV
Contact
Portfolio
CV
Contact
Marlow Parker
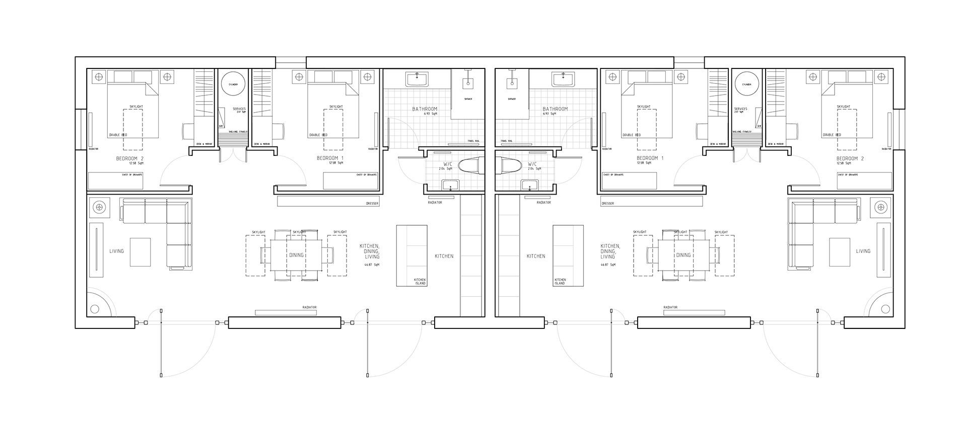
Brean Down Farm
BARN CONVERSION - PLANNING DRAWINGS
FRONT ELEVATION
FLOOR PLAN
BLOCK PLAN
ALL ELEVATIONS
↑
Back to Top